کارنامه طراحی اکوستیک معماری الهه ثابتی

● طراحی سالن اجتماعات و اتاق جلسات ساختمان نظام مهندسی یزد. 1404

طراحی فاز 1 و 2، شرکت کتیبه ایساتیس

کارفرما: سازمان نظام مهندسی استان یزد

سالن اجتماعات ساختمان نظام مهندسی یزد سالنی کوچک با ظرفیت حدودی 160 نفر است که در آخرین طبقه این ساختمان قرار گرفته و سازه آن بر اساس طرح اولیه معماری اجرا شده است. در طراحی اکوستیک معماری این فضا، تناسبات کشیده و کوتاه بودن سقف دو مشکل بوده‌اند که طرح داخلی اکوستیک معماری آن بر مبنای حل این مشکلات شکل گرفته است. چیدمان صندلی‌ها بر روی سکوهایی با حداقلِ ارتفاع به افزایش ارتفاع فضا کمک کرده و ایجاد شکست در دیوارها و همچنین ترکیب مصالح منعکس‌کننده و جذب‌کننده برای پوشش آنها، مانع پدید آمدن آمود در فضا شده، به پخشایی صدا نیز کمک می‌کند. یکسانی نسبی زمان واخنش برای تمام صندلی‌ها یکی از دستاوردهای اصلی این طرح است.


سالن اجتماعات ساختمان نظام مهندسی یزد

اتاق جلسات ساختمان نظام مهندسی یزد

از آنجا که در ساختمان از سیستم دیواهای خشک استفاده شده است، در طرح اکوستیک معماری نیز صدابندی با تقویت این دیوارها انجام شده و سطح داخلی آن در برخی قسمت‌ها نقش منعکس‌کننده را نیز بازی می‌کند. جذب‌کننده‌های این سالن از تخته چندلا هستند و این ترکیب در طراحی اتاق جلسات نیز به کار رفته است.


پلان سالن اجتماعات نظام مهندسی یزد

نمودار زمان واخنش عمومی سالن اجتماعات

● طراحی سالن همایش هزارنفره دانشگاه یزد. 3-1402

طراحی فاز 1 و 2، شرکت کتیبه ایساتیس

کارفرما: دانشگاه یزد

سالن همایش هزارنفره دانشگاه یزد سالنی چندمنظوره است که سازه و سفت‌کاری آن بر اساس طرحی اولیه ساخته شده بود. طرح حاضر علاوه بر اصلاح صدابندی سالن، به طور خاص به اکوستیک داخلی سالن، بر اساس شرایط و محدودیت‌های موجود، پرداخته است. در طرح اکوستیک معماری سالن سعی شده تا نمودار زمان واخنش و سایر مشخصات اکوستیکی سالن مناسب گفتار باشند و به کمک الکترواکوستیک امکان اجرای مناسب موسیقی نیز در سالن فراهم شود.


دید به سمت سن و طبقه همکف، سالن دانشگاه یزد

پلان سالن همایش دانشگاه یزد

● طراحی استودیو صدا و تصویر وزرات علوم، تحقیقات و فن‌آوری. 1402

طراحی صدابندی و اکوستیک داخلی، شرکت کتیبه ایساتیس

کارفرما: وزارت علوم، تحقیقات و فن‌آوری

استودیو طراحی‌شده فضایی موجود در ساختمان وزارتخانه است که به یک استودیو صدا و یک استودیو تصویر تغییر کاربری داده است. به منظور صدابندی دو مشکل اساسی وجود داشت: خواست کارفرما برای نگه داشتن یکی از پنجره‌های فضا و دیگری، وجود اتاق هواساز در طبقه بالای استودیو. به منظور حل این مشکل یک سازه مستقل در داخل فضا اجرا شد که با مواد الاستیک از سازه موجود جدا می‌شود. اجرای دیوار عایق‌بندی‌شده روی این سازه و همچنین وجود پنجره دوم بر روی آن، همچنین طراحی فیلترهای ورودی، مشکل صدابندی را حل کرده است.


استودیو تصویر وزارت علوم و پنجره آن

استودیو تصویر وزارت علوم

نازک‌کاری داخلی استودیو عموماً تخته چندلا سوراخ‌دار با مواد جاذب صداست. مشخصات این پنل‌ها به گونه‌ای طراحی شده که در ترکیب با مصالح کف و سقف نمودار زمان واخنش را به صورت خطی و در حدود 0/4 ثانیه و مناسب برای گفتار شکل دهند.


● طراحی سالن موسیقی تالار مرکزی اراک. 1399

طراحی فاز 1 و 2، مهندسان مشاور سازواره نو

کارفرما: وزارت فرهنگ و ارشاد اسلامی

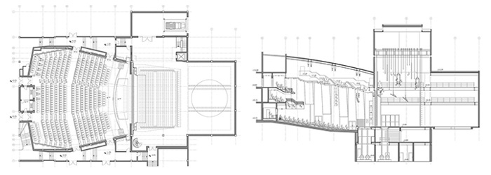
سالن موسیقی تالار مرکزی اراک سالنی با ظرفیت 310 نفر است که برای اجرای «موسیقی ایرانی» طراحی شده است. سازه و سفت‌کاری این سالن شامل طبقه اصلی و یک بالکن در سال‌های قبل انجام شده بود. با این وصف «اکوستیک معماری» این سالن (طراحی داخلی سالن با توجه به ملاحظات اکوستیکی) موضوع طراحی بوده است.


سالن موسیقی تالار مرکزی اراک، دید از روی سن

سالن موسیقی تالار مرکزی اراک، دید از بالکن به سن

اولویت طراحی این سالن «صدارسانی زنده» است به طوری که صدای موسیقی بتواند در صورت نیاز بدون وسایل الکترواکوستیک (میکروفون و بلندگو) نیز با کمیت و کیفیت مناسب به گوش شنوندگان برسد. زمان واخنش در این سالن با توجه به اجرای موسیقی ایرانی در حدود 1 ثانیه و تقریباً به صورت خطی طراحی شده است.


نمودار زمان واخنش عمومی سالن موسیقی در حالت گروه‌نوازی

طراحی سالن به صورتی است که دو امکان برای اجرا وجود دارد: حالت اول برای اجرای تکنوازی است که در این حالت قسمت پشتی سِن با یک جداکننده متحرک از آوانسن جدا میشود و نوازنده در فاصله کمتر با شنوندگان (بخش جلویی سن) و در سالنی با حجم و واخنش کمتر به اجرا می‌پردازد. حالت دوم متعلق به اجرای گروه‌نوازی است که نوازندگان بر روی بخش طراحی‌شده سن قرار میگیرند و سالن در این حالت با واخنش کمی بیشتر پاسخگوی صدارسانی زنده برای آنان نیز خواهد بود.

طرح حاضر با هماهنگی بخش‌های الکترواکوستیک، سازه، تأسیسات مکانیکی و الکتریکی اجرایی شده است.


سالن موسیقی تالار مرکزی اراک، پلان همکف و برش طولی

● طراحی سالن تأتر تالار مرکزی اراک. 1399

طراحی فاز 1 و 2، مهندسان مشاور سازواره نو

کارفرما: وزارت فرهنگ و ارشاد اسلامی

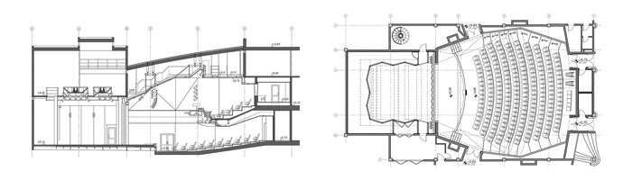
سالن تأتر تالار مرکزی اراک یک سالن تأتر با ظرفیت 625 نفر است که به دلیل بزرگ بودن حجم سالن علاوه بر اجرای نمایش، به منظور اجرای موسیقی غیرایرانی نیز طراحی شده است. سازه و سفت‌کاری این سالن شامل طبقه اصلی و دو طبقه بالکن در سال‌های قبل انجام شده بود. با این وصف «اکوستیک معماری» این سالن (طراحی داخلی سالن با توجه به ملاحظات اکوستیکی) موضوع طراحی بوده است.


سالن تأتر تالار مرکزی اراک، دید از بالکن به سن

سالن تأتر تالار مرکزی اراک، دید از روی سن

سالن تأتر تالار مرکزی اراک، دید از داخل سالن

در این سالن که اولویت طراحی با نمایش است، احجام و مصالح به گونه‌ای طراحی شده‌اند تا کمیت و کیفیت صداهای زیر و بم با توجه به حجم بزرگ سالن، برای گفتار مناسب باشد. صدارسانی زنده به دلیل ظرفیت بالای سالن به طور کامل مقدور نبوده و برای افراد جلوی سالن پیش‌بینی شده است. مقدار واخنش در حدی است که پاسخگوی اجرای موسیقی غیرایرانی (کلاسیک، پاپ و...) نیز خواهد بود.


نمودار زمان واخنش عمومی سالن تأتر

طرح حاضر با هماهنگی بخش‌های الکترواکوستیک، سازه، تأسیسات مکانیکی و الکتریکی و نیز ماشینری صحنه تأتر اجرایی شده است.


سالن تأتر تالار مرکزی اراک، پلان همکف و برش طولی



● طرح ساکت‌سازی تأسیسات ساختمان مسکونی یاسمن. 1395

ساختمان مسکونی یاسمن به طراحی مهندسین مشاور صفامنش و همکاران و مدیریت پروژه مهندس علی تربتی اجرا شده است. بخشی از تأسیسات این ساختمان در مجاورت بام سبز قرار گرفته است که در طرح اکوستیکی آن جزئیات اجرایی کف و دیواره‌های محل قرارگیری تأسیسات به منظور ساکت‌سازی نوفه دستگاه‌ها طراحی شده است.







● تالار موسیقی شهر رشت. 95-1394

همکاری با دکتر خسرو مولانا در طراحی فاز 1، شرکت پارسه هنر

کارفرما: وزارت فرهنگ و ارشاد اسلامی

سازه و سفت‌کاری تالار موسیقی شهر رشت با ظرفیت بیش از 800 نفر قبل از طراحی اجرا شده بود. پس از طراحی ساکت‌سازهای سیستم تأسیسات، در مرحله اول طرح اکوستیک معماری، هندسه سالن و محل منعکس‌کننده‌ها به منظور تأمین کمیت و کیفیت مناسب صدارسانی طراحی شده است.


تالار موسیقی شهر رشت، حجم کلی

تالار موسیقی شهر رشت، حجم کلی